
2364 * 1397
2364 * 1310
Wuehrer House位于东汉普顿镇Amagansett,坐落在一个平缓倾斜的隐蔽处。 住宅周围环绕着自然保护区,坐落在森林空地内,可通过碎石车道进入
2364 * 3152
该住宅由纽约建筑师杰罗姆・恩格林(Jerome Engelking)为其奥地利姻亲设计,并将其用作家庭聚会的休养所。在构思房子时,恩格林寻求利用田园诗般的环境
2364 * 832
为了庆祝这个宁静的地方,房子的设计使建筑隐喻无声,避免明显的象征意义,以及对周围景观简单,谨慎,理性和慷慨开放的沉思结构的构想
2364 * 1352
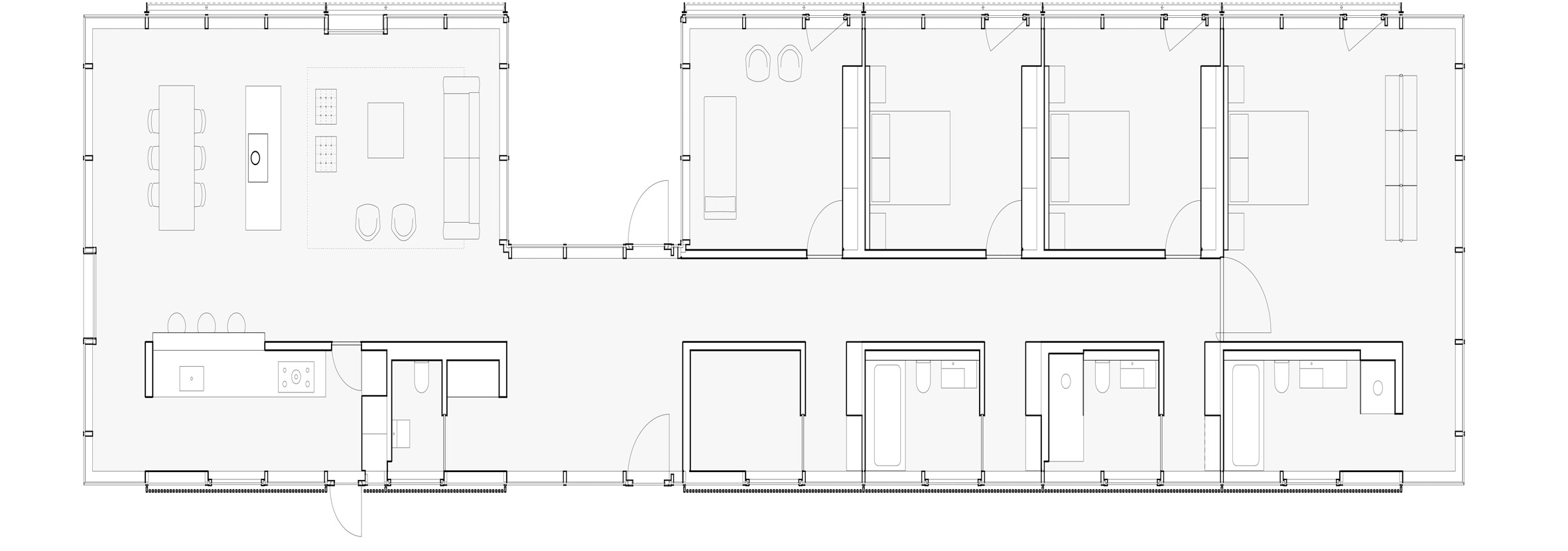
住宅由矩形平面图组成,毗邻一个户外露台。使用一系列“非物质化”模块配置住宅
2364 * 1131
外墙由深色框架内的大片玻璃组成。在西部海拔,可伸缩的木质百叶窗减少了太阳能热量的增加,同时帮助家庭与树木繁茂的环境融为一体。在朝向车道的东边,垂直的雪松板条提供隐私
2364 * 3152
室内设计融合了现代装饰和中性色调。木材结构元素暴露在外,无需干墙,油漆和天花板元素。木材旨在提供“与最小设计的温暖对比”
2364 * 1310
大窗户与周围的景观紧密相连,同时还拥有充足的日光
2364 * 818
自然光成为决定空间的重要元素,庆祝不断变化的季节和卓越的树木景观
2364 * 840
为了降低家庭的能源消耗,建筑师采用了辐射地板采暖和外部百叶窗等策略
2364 * 1550
2364 * 1330
2364 * 1773
2364 * 3152
2364 * 831
2364 * 1256
2364 * 1523
TAG标签关键词:Jerome Engelking 度假屋 别墅 家 住宅 建筑





























































































