
2364 * 1329
2364 * 3563
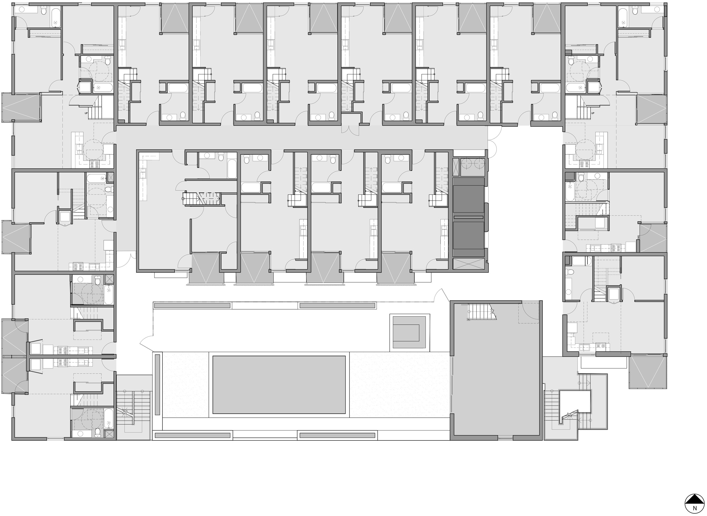
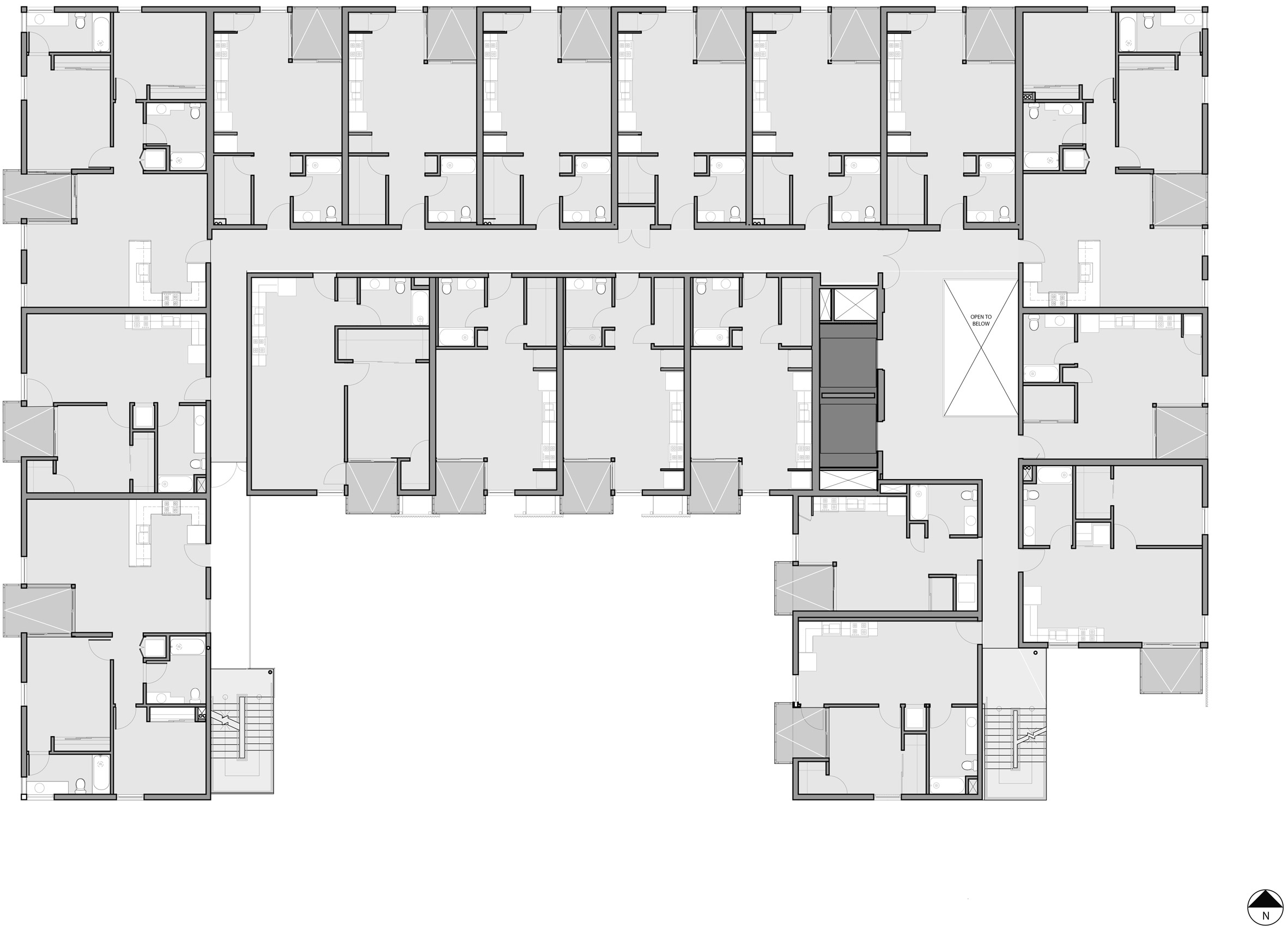
该建筑建造在一个相对细长的182×127英尺(55×39米)的建筑物上,三面都是现有建筑物。鉴于这些场地的限制,建筑师不得不“重新考虑传统的平面图”。
2364 * 2844
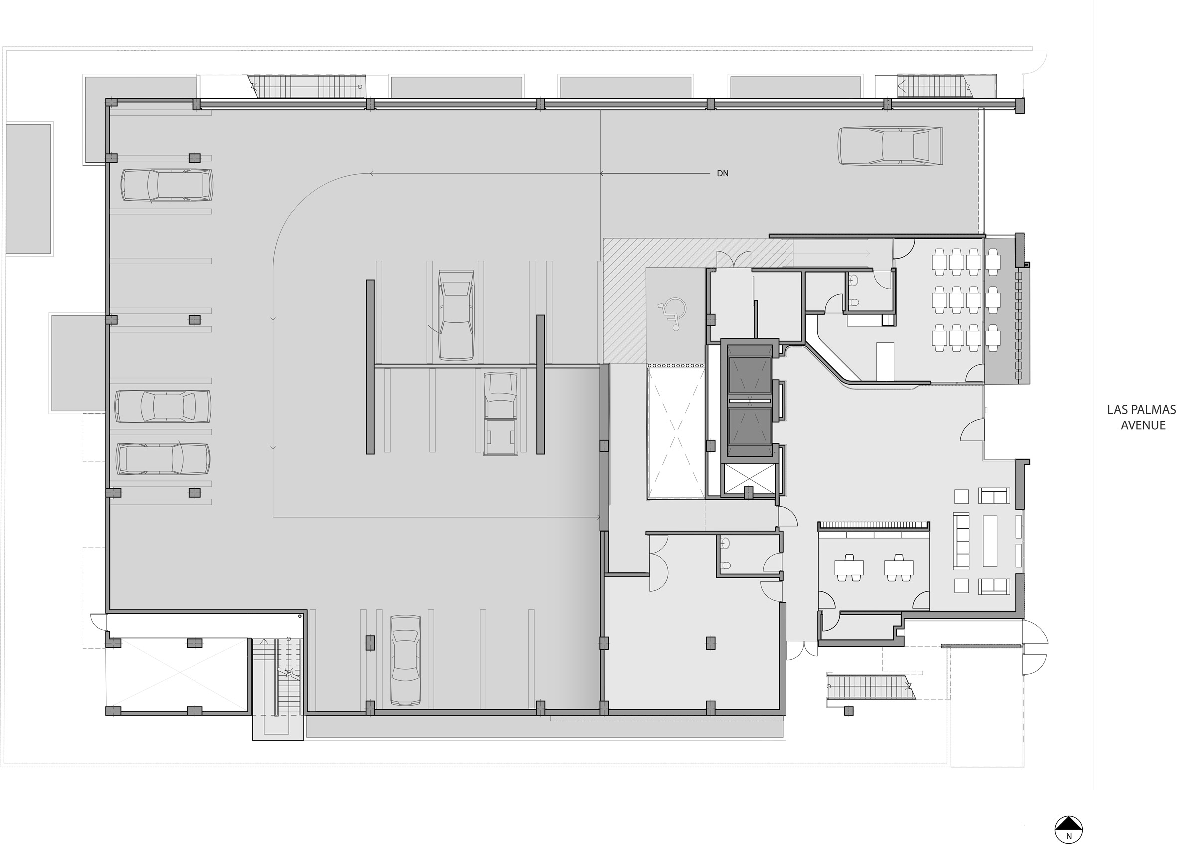
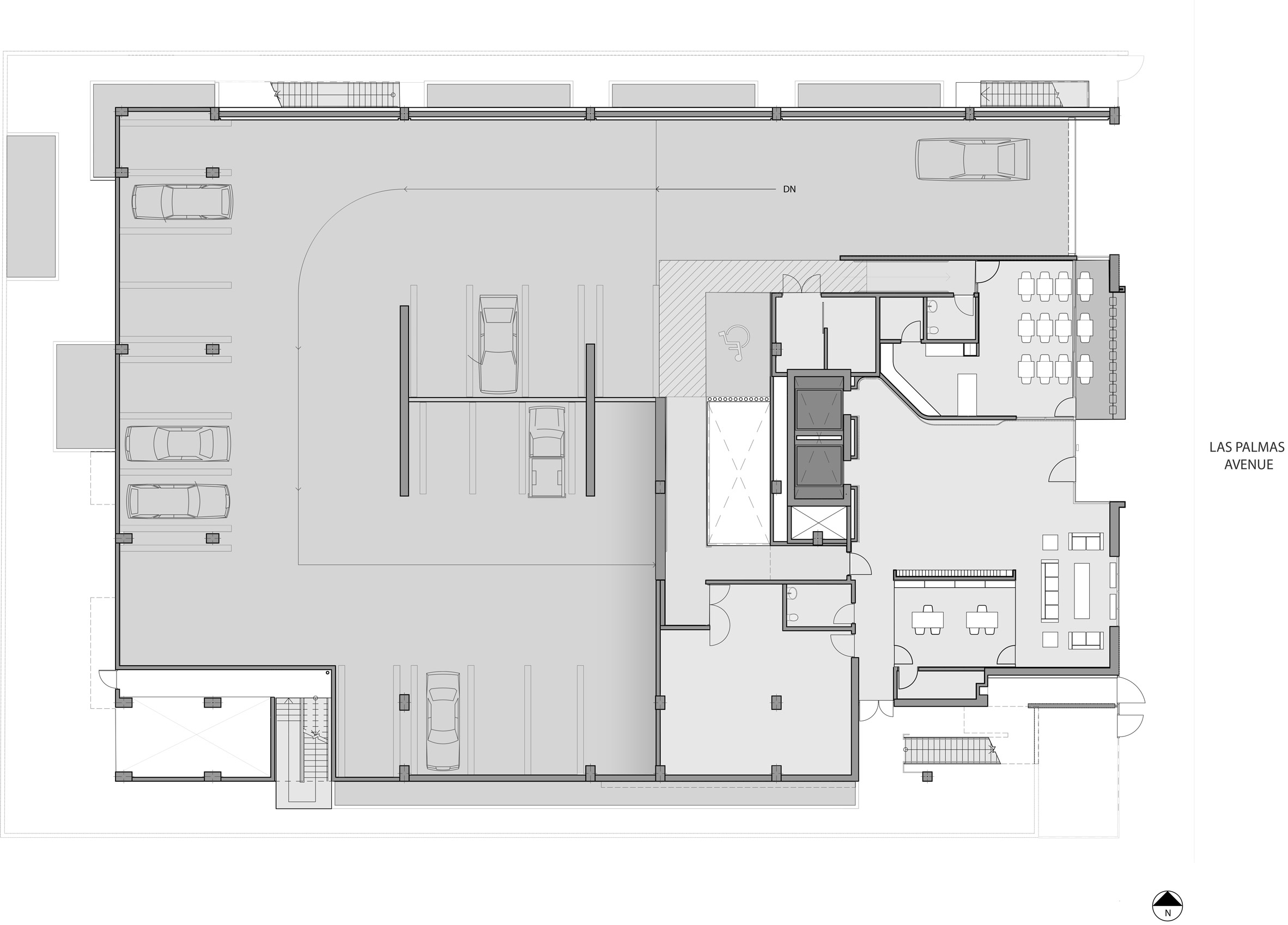
他们创造了直线形式,围绕着酒店南侧的露天庭院布置成曲线。该团队并没有整合一个连接所有楼层的楼梯间,而是在整个计划中穿插楼梯。一楼设有1,100平方英尺(102平方米)的零售空间
2364 * 3544
这种多层次的沟通提供了楼层之间的视觉变化,并消除了任何相同或重复的感觉
2364 * 1577
该建筑包含一室公寓,一卧室和两卧室公寓,面积从480到1,265平方英尺(45到118平方米)不等
2364 * 1577
该建筑的82间公寓以优化景观和自然采光的方式进行布置。每个单元都有超大的窗户,玻璃滑块和嵌入式阳台。为了增加隐私,在面向庭院和街道的单元中增加了穿孔屏幕。
2364 * 4004
一系列设施旨在扩大租户的生活空间和培养社区,例如带有手工咖啡的工作区,大堂的吧台,娱乐室和温水游泳池。该建筑顶部设有天空休息室,可欣赏到好莱坞山和洛杉矶天际线的美景。
2364 * 3544
虽然The Line Lofts被称为豪华公寓楼,但该项目存在成本限制,预算限制在重要性方面发挥了作用,在结构方面,混凝土用于地面,而预制木框架用于上层。主立面采用波纹金属和灰色灰泥包裹,交替使用,以增强建筑的外观。
2364 * 1576
纹理金属的饰面“反映了整天天空变化的色调,让人感觉建筑始终处于不稳定状态
2364 * 1577
2364 * 3345
2364 * 1587
2364 * 1599
2364 * 3544
2364 * 1728
2364 * 1708
2364 * 1698
特别提醒:本站所有作品收集于网络,版权均属各自所有者,本站素材仅提供学习参考,请勿商用,如有侵权请联系我们邮箱(200894114#qq.com,把#换成@)删除,要购买全部版权商用请自行联系作者,谢谢!
相关标签搜索:


